根据国家标准、地方标准以及设备提供方要求,判断设置的区域以及区域的环境是否满足建设要求,为医院在新建科室时提供技术性的指导意见。2010 年以来, 公司一直是各个设备厂家的场地 ESP 服务供应商,帮助这些厂家的 PM 去完成场地勘察等服务,已经积累了一批专业的场地工程师,也积累很多影像科设备 场地勘察方面的经验。
在项目设计前期需进行场地测绘,为了场地布局设计更加贴合实际,后期施工更加顺畅;另外,场地进场时我方也需要再次核实现场实际情况,避免出现与图纸不符合的情况。
在前期设计以及项目场地准备完成后,施工人员进场,根据设计的图纸进行现场核实,然后根据图纸进行划线以及项目土建施工。在前期设计以及项目场地准备完成后,施工人员进场,根据设计的图纸进行现场核实,然后根据图纸进行划线以及项目土建施工。在前期设计以及项目场地准备完成后,施工人员进场,根据设计的图纸进行现场核实,然后根据图纸进行划线以及项目土建施工。在前期设计以及项目场地准备完成后,施工人员进场,根据设计的图纸进行现场核实,然后根据图纸进行划线以及项目土建施工。在前期设计以及项目场地准备完成后,施工人员进场,根据设计的图纸进行现场核实,然后根据图纸进行划线以及项目土建施工。在前期设计以及项目场地准备完成后,施工人员进场,根据设计的图纸进行现场核实,然后根据图纸进行划线以及项目土建施工。
根据国家标准、地方标准以及设备提供方的要求 , 进行工艺流程设计 , 使其满足相关验收标准的要求。从病人流,医护流,物流,价值流方面进行分析,确保科室的二、三级流程设计的合理性和高效;还能对工程建设和办证流程提供合理化建议,比如第三方影像中心建设流程。
在医院科室设计完成后进行整体效果设计,即根据甲方需求,在设计风格、色彩搭配、灯光、材质等方面 进行整体搭配,并提供整体效果体现及动画设计。
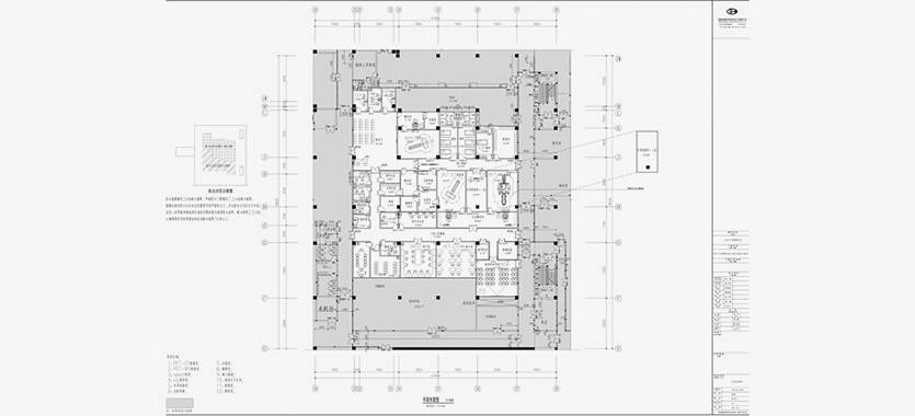
公司具备乙级设计资质,能依据各方确认后的布局方案图,进行详细施工设计和工程量清单编制,同时具备BIM和模拟动画的能力。
拥有全国各地环预评资源,能为这些地方的客户提供环预评全流程服务。
公司拥有关键部件的研发、生产的能力,以及完整的供应链系统,可以满足在医疗专业工程建设过程中,一些重要部件及特制零部件的需求。
良好的设计,需要高品质的产品和施工来实现。全流程的高质量设计、生产和施工一体化服务确保了客户满意。经过专业化培训的施工队伍,加上以经验丰富的设计师和项目经理为主导的项目管理团队,以及严格的质量控制体系,确保了整体施工按时按质的完成。
工程结束后我司会对机房进行预检测,确保机房各项性能满足国家规范、合同条款要求、设备厂家要求和客户需求。自检合格后再经权威机构进行第三方检测,并出具最终的检测报告。
工程结束后我司会积极配合第三方检测单位、总包单位和院方对机房进行最终验收,提前做好自检自查工作并准备好验收资料,派遣相关人员在现场进行协助和配合。
售后服务包括自主维护和培训服务、定期维护服务、预见性维护和紧急维护服务、现场易损易耗件提供服务等。公司拥有完整的售后服务管理流程,能够及时响应项目交付后的售后服务需求,为客户提供一流的售后服务。